Bienvenue chez
ELSA'HOME à Esch-sur-Alzette
RECHERCHE

Maison à vendre 4 chambres à Junglinster

  • Référence : M-1509-2
  • Type : Maison
  • Chambres : 4
  • Salles de bains : 4
  • Surface habitable : +/-218,91 m2
  • Superficie terrain : +/- 1,78 ares
  • Prix de vente : 1 065 000 €
Contact
Classe énergétique
NC
Classe d'isolation thermique NC

Description

Ce bien se trouve dans ce lotissement

Découvrez cette future maison en nouvelle construction située à Heffingen, à proximité de Junglinster, offrant un cadre de vie paisible et moderne.

Avec une surface totale d'environ 218.91 m² et une surface habitable de 101,91m², cette maison a été pensée pour offrir des espaces fonctionnels et confortables, parfaitement adaptés à la vie de famille.

Au rez-de-chaussée, vous serez accueilli par un hall d'entrée desservant un local technique ainsi qu'un WC séparé. Vous découvrirez ensuite un bel espace de vie lumineux avec une cuisine ouverte sur le séjour, donnant un accès direct à une terrasse de 17m² et au jardin privatif, idéal pour profiter des moments en extérieur.

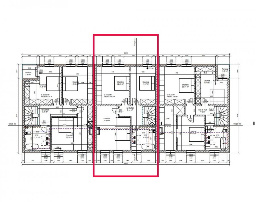
Le premier étage se compose d'un hall de nuit, de trois chambres à coucher ainsi que d'une salle de bains, offrant un espace nuit confortable pour toute la famille.

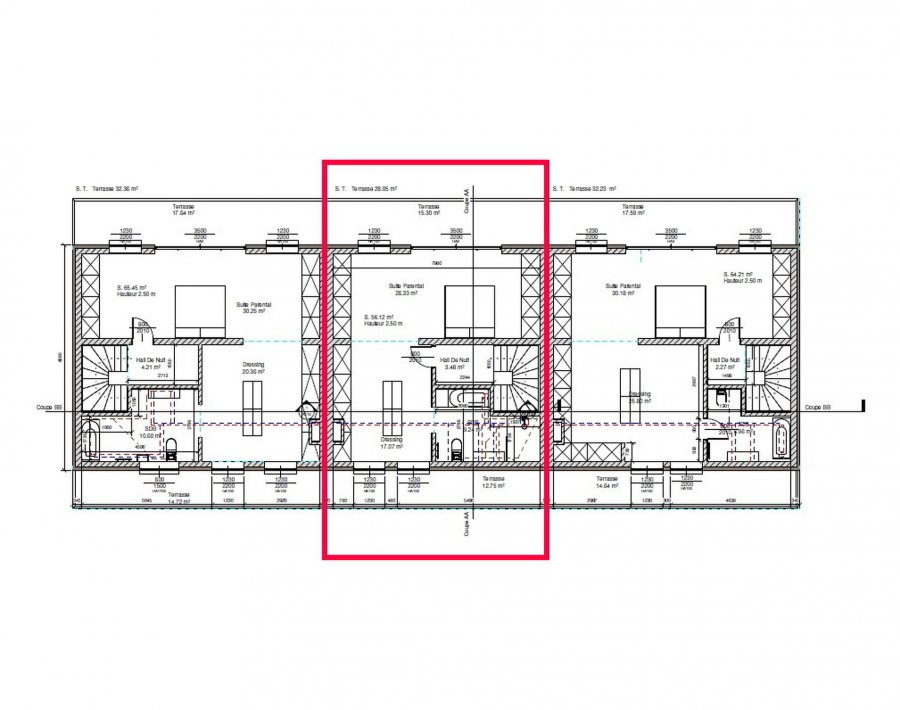
Au deuxième étage, vous trouverez un hall de nuit menant à une spacieuse suite parentale. Celle-ci dispose de son propre dressing, d'une salle de bains privative et d'un accès direct à une agréable terrasse de 15,30 m², parfaite pour créer un espace intime et relaxant.

Ce bien neuf représente une excellente opportunité d'acquérir une maison moderne dans un environnement calme, avec des espaces bien agencés et des prestations de qualité.

Idéalement localisé, le projet se situe à seulement ±20 km du centre de Luxembourg-ville et ±24 km du Kirchberg, permettant de concilier tranquillité et proximité des principaux pôles économiques.

Pour toutes questions ou demandes d'informations, n'hésitez pas à nous contacter, nous serons toujours à votre service.

Agence ELSA'HOME à votre écoute pour la concrétisation de vos projets en toute confiance.

--------------------------------------------------------------------
Discover this new-build home in Heffingen, near Junglinster, offering a peaceful and modern living environment.

With a total floor area of approximately 218.91 m² and a living area of 101.91 m², this house has been designed to provide functional and comfortable spaces, perfectly suited to family life.

On the ground floor, you'll be welcomed by an entrance hall leading to a utility room and a separate toilet. You'll then discover a beautiful, light-filled living area with a kitchen opening onto the living room, providing direct access to a 17m² terrace and the private garden, ideal for enjoying time outdoors.

The first floor comprises a landing, three bedrooms and a bathroom, providing a comfortable sleeping area for the whole family.

On the second floor, you will find a landing leading to a spacious master bedroom. This features its own walk-in wardrobe, an en-suite bathroom and direct access to a pleasant 15.30 m² terrace, perfect for creating an intimate and relaxing space.

This new-build property represents an excellent opportunity to acquire a modern home in a quiet setting, with well-designed spaces and high-quality fittings.

Ideally located, the development is situated just ±20 km from the centre of Luxembourg City and ±24 km from Kirchberg, allowing you to enjoy peace and quiet whilst remaining close to the main business hubs.

If you have any questions or would like further information, please do not hesitate to contact us; we are always here to help.

ELSA'HOME is here to assist you in bringing your projects to fruition with complete confidence.

Caractéristiques

Intérieur

SalonOui
CuisineOui
Cuisine séparéeOui

Sanitaires

Salles de bains4
Toilette séparée1

Extérieur

Terrain1.78 ares
TerrasseOui
Jardin51 m²

Chauffage / climatisation

Pompe à chaleurOui

Contactez-nous

+352 26 54 04 05
+352621233402

Vous
 
Champs obligatoire
 
 
 
En envoyant ce formulaire, j’accepte que mes informations soient enregistrées puis utilisées par notre agence afin de répondre à ma demande. Consultez notre pour connaître vos droits.
 

Localisation

Junglinster